4 Bedroom Villa Design Idea 12m x 16,5m
This villa is modeling by SAM-ARCHITECT With 2 stories level.
This villa is modeling by SAM-ARCHITECT With 2 stories level.
It’s has 4 bedrooms.
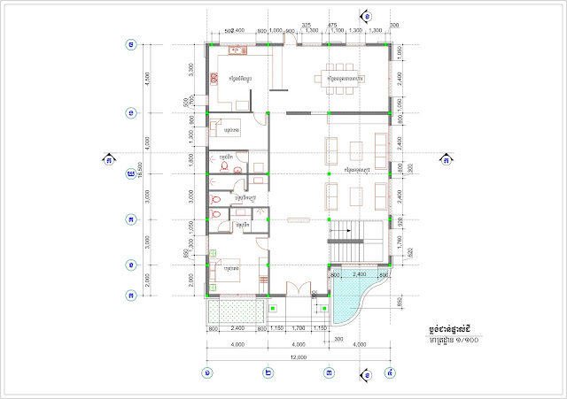
4 Bedroom 12m x 16,5m House description:
The House has
-Car Parking small garden access to kitchen
-Living room,
-Dining room,
-Kitchen,
-4 Bedrooms with bathroom
-Store and Restroom
Watch the Video For More Details:
01 Villa Design Idea 12m x 16,5m Sketchup and lumion
Sketchup Download Lumion Download Autocad Download JPG Plan Download
Link Below Share to get the model:
Your could Reach Us: Personal FB: Sophoat Toch
Facebook Page: Sam Architect
Facebook Group: Home Design Idea
More Plans Download On Youtube: Sam Phoas Channel
If you think this Plan is useful for you. Please like and share.
First Floor Plan
Roof Plan
Back Elevation Home Plan
Front Elevation Home Plan
Left Elevation Home Plan
Right Elevation Home Plan










Leave a Reply