This is the Small House Plan that I had designed base on my Customer idea.
The house modeling by SAM-ARCHITECT With 3 stories level. It’s has 3 bedrooms. Plan size 5.6x8m Plot size 5.6x15m.
Modern House Plans 5.6 x 8 Meter with Interior House description:
Ground Level: -Outdoor mini garden with stair front up to Ground floor living room -One car parking outdoor -Dining room -Kitchen -Mini bar -Bathroom under Stair -Outdoor back house
First Level: -One Master Bedroom with bathroom -Bedroom 1 with bathroom
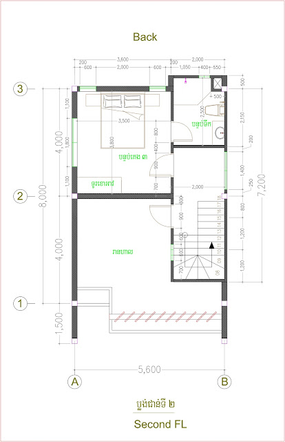
Second Level: -One Bedroom with bathroom -Big balcony and small garden
Watch the Video For More Details:
Link Below Share to get the model:
Your could Reach Us: Personal FB: Sophoat Toch
Facebook Page: Sam Architect
Facebook Group: Home Design Idea
More Plans Download On Youtube: Sam Phoas Channel
If you think this Plan is useful for you. Please like and share.








Hi Sam. I love your work.
More power